Available within 3 monthsHigh Physical SupportCamden Park

Boutique 2-Bedroom HPS Duplex in the Heart of Camden Park

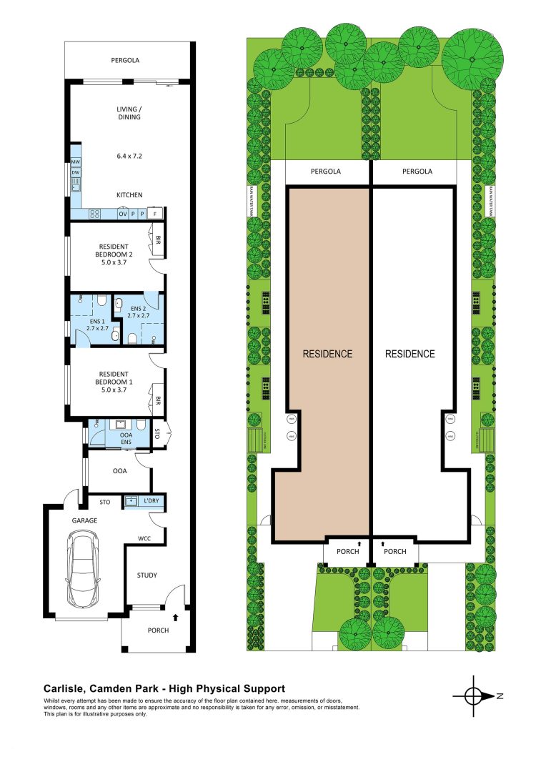
2 Bed 2 Bath 1 Living 2 Car 1 Ooa

Adenium Living is proud to offer this purpose-built 2-bedroom, 2-bathroom High Physical Support duplex with Onsite Overnight Assistance, ideally positioned at Camden Park, SA.

Camden Park is a well-established and highly convenient suburb located between the Adelaide CBD and the coastline. Residents will benefit from close proximity to:

  • Westfield Marion shopping and dining precinct
  • Flinders Medical Centre and major health services
  • Public transport links including train and bus routes
  • Glenelg Beach and surrounding coastal lifestyle amenities
  • Local parks, community facilities and neighbourhood cafés

This central location offers excellent connectivity, allowing residents to enjoy both city access and relaxed coastal living.

High Physical Support housing is designed to incorporate a high level of high physical access provision for people with significant physical impairment and requiring very high levels of support.

Features of the house:

  • Contemporary facades
  • Choice of wall colour in bedroom
  • Modern kitchen with accessible kitchen bench
  • Video intercom
  • Hard-wearing timber flooring
  • Double-glazed windows
  • Accessible clothesline
  • Solar panels
  • Individual controlled air conditioning in bedrooms and living areas
  • Built-in adjustable wardrobe
  • Ceiling hoist provision
  • Spacious, fully furnished living and dining area
  • Accessible bathrooms and laundry
  • Onsite Overnight Assistance (OOA) room
  • Private bathrooms to all bedrooms
  • Outdoor undercover area
  • Professional landscaping and garden maintenance
  • Wheelchair charging space
  • Fire sprinklers
  • Pet considered

All Adenium Living Houses are built to Class 3 high level design.

If you are interested in this property, please click on the Enquire Now button below or call us on (08) 7095 5590. Our team is ready to answer your questions. If this is not what you are looking for, we would love to offer guidance to find another option. Contact us today!

 

Contact

Name(Required)
Which best describes you?*(Required)
Which best describes your SDA status?*(Required)
Hidden
Hidden
Outputs
Hidden
Website Enquiry
Hidden
MM slash DD slash YYYY